Project Tiny House is een project dat ik gedaan heb vanuit school. Deze opdracht ging om het exterieur van het Tiny House en minder om het interieur. Hieronder zal ik meer vertellen over het proces wat ik doorlopen heb en de verschillende onderdelen van dit project.

Wat is een Tiny House ?
Een Tiny House is een woning kleiner is dan 50m2. Het is een kleine, vrijstaande woning waarin volwaardig gewoond wordt. Alle voorzieningen die je nodig heb in een ‘gewone’ woning zijn ook te vinden in een Tiny House. Vanwege de compactheid van de woning is de ecologische voetafdruk lager. Dit is dan ook een uitdaging bij een Tiny House. Doordat het oppervlak kleiner is moet er slim en creatief omgegaan worden met de ruimte.
Programma van Eisen ( PvE ) | Project Tiny House
De Programma van Eisen heb ik vormgegeven door middel van afbeeldingen. De afbeeldingen geven aan wat de eisen en de stijl van de klant is









Conceptbord
Het conceptbord wordt gemaakt met behulp van de PvE. Alle ideeën moeten overeenkomen met het conceptbord. Deze moet dus echt passen bij de stijl van de klant.

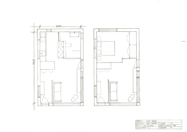
Voorlopig Ontwerp
Het voorlopig ontwerp is tot stand gekomen door een aantal schetsen en onderzoeken naar een Tiny House. Uiteindelijk is dit mijn ontwerp geworden.


Maquette
Uiteindelijk is er een maquette van gemaakt. Dit geeft een duidelijk en realistisch beeld van hoe het ontwerp er uit ziet. In de volgende diashow ziet u de maquette van de Tiny house vanaf verschillende perspectieven.







