Project Denemarken is een project dat ik zelf heb uitgevoerd. Ik ga jullie meenemen in het proces van de ontwerpen. Ik zal veel gebruik maken van afbeeldingen. Hierdoor is er duidelijker een beeld te schetsen over de sfeer en de inrichting.

Wat houd dit project in ?
Dit project gaat over de gehele inrichting van een huis. Hierbij moet natuurlijk gekeken worden naar samenhang van de ruimtes, maar ook een fijne leefomgeving. Ook heb ik hier te maken gehad met een hele andere cultuur, waardoor ik veel nieuwe dingen heb geleerd. Dit heb ik ook verwerkt in het project.
Programma van Eisen ( PvE ) | Project Denemarken
De Programma van Eisen ga ik vormgeven door middel van afbeeldingen. De afbeeldingen geven aan wat de eisen van de klant waren en de stijl van de klant is.









Conceptbord
Het conceptbord wordt gemaakt met behulp van de PvE. Alle ideeën moeten overeenkomen met het conceptbord. Deze moet dus ook passen bij de stijl van de klant.

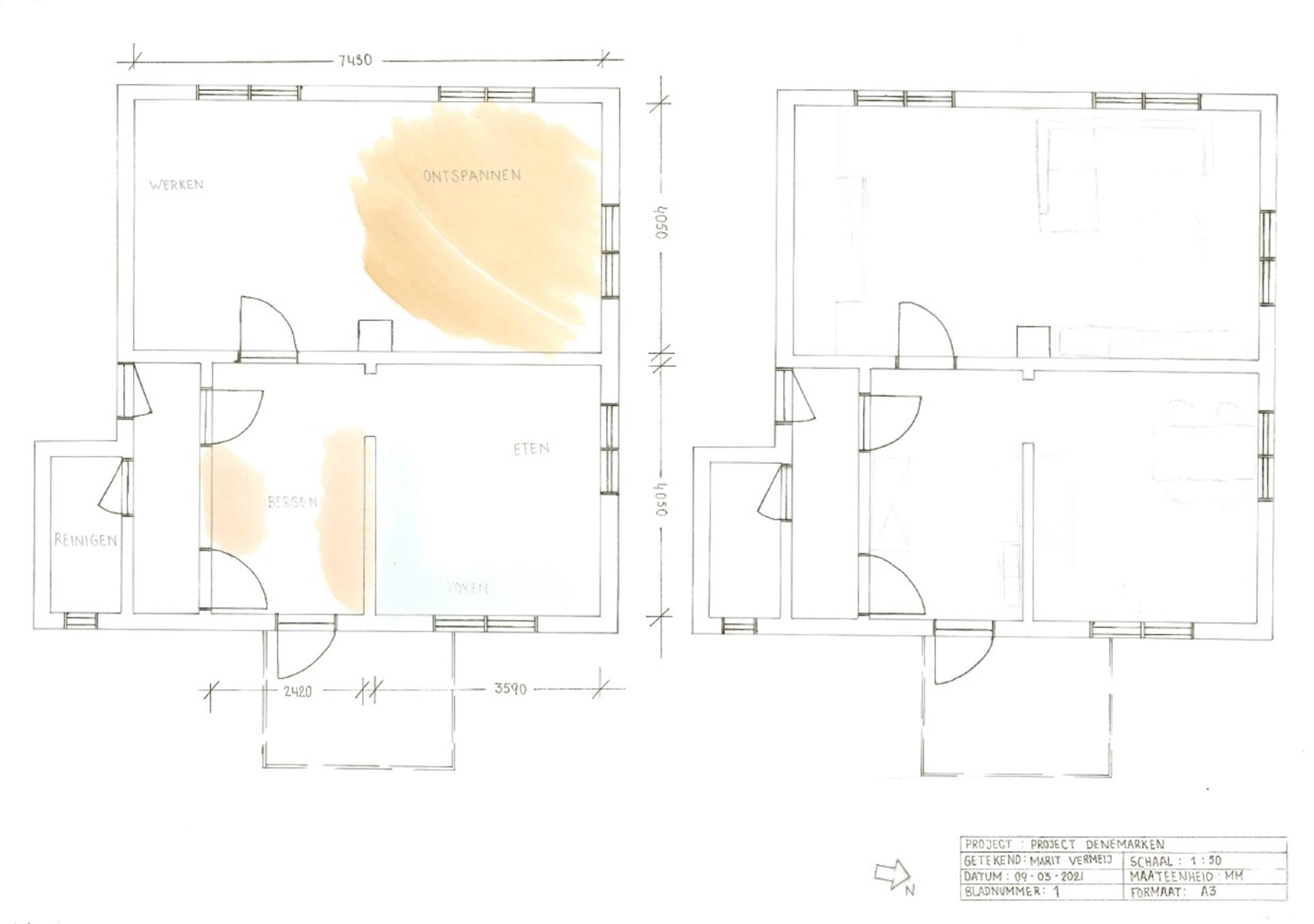
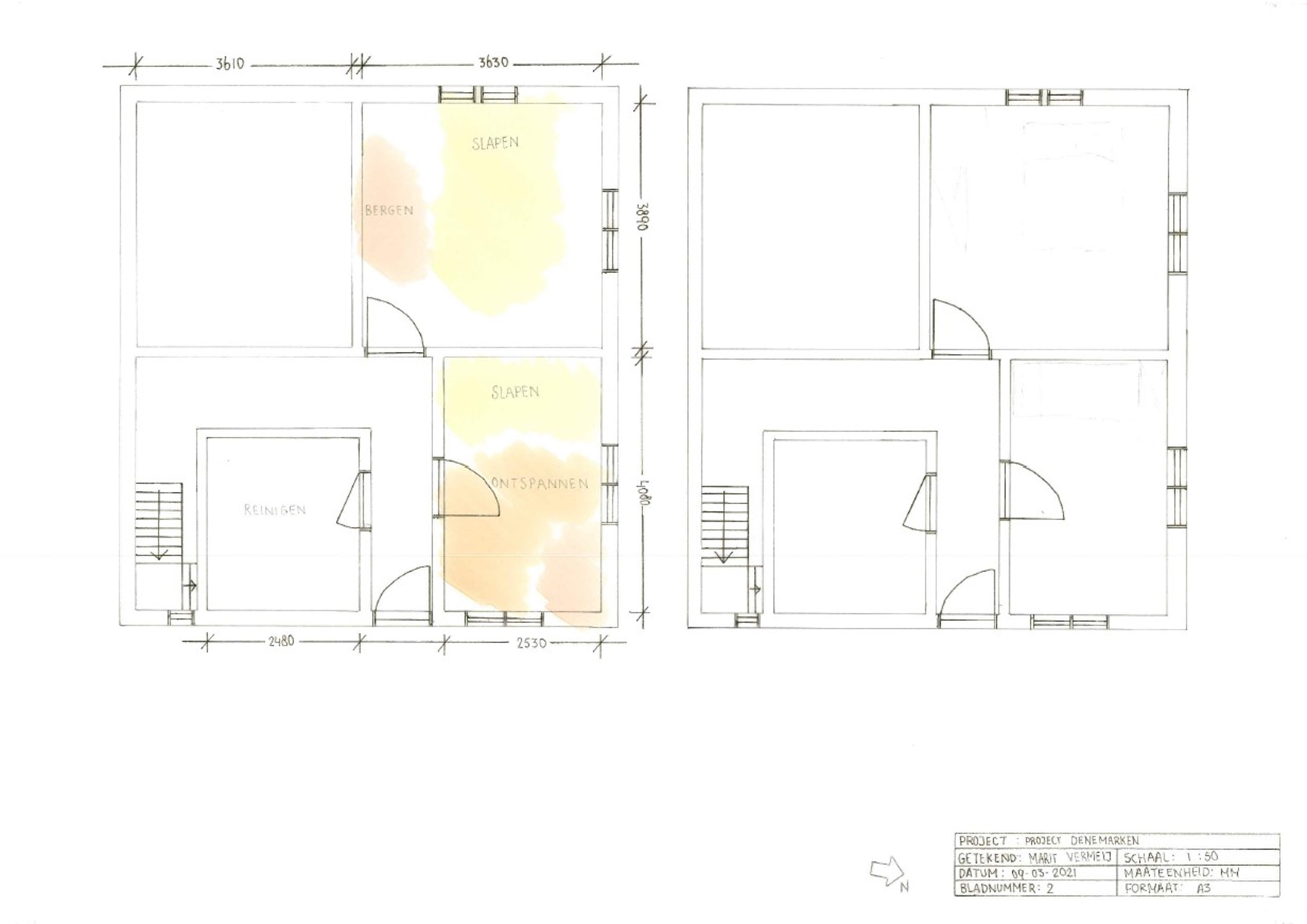
Vlekkenplannen & Indelingsschetsen
Vlekkenplannen & Indelingsschetsen worden gemaakt om ideeën te bedenken voor de ruimte. Zo komen er meerdere ideeën, waar uiteindelijk een goed en mooi interieur uit komt.






Meubelborden
Om een idee te krijgen van de meubels en inrichting zijn meubelborden heel handig. Hierdoor kan de klant de combinatie van de meubels samen zien en wordt het duidelijk wat de sfeer wordt.




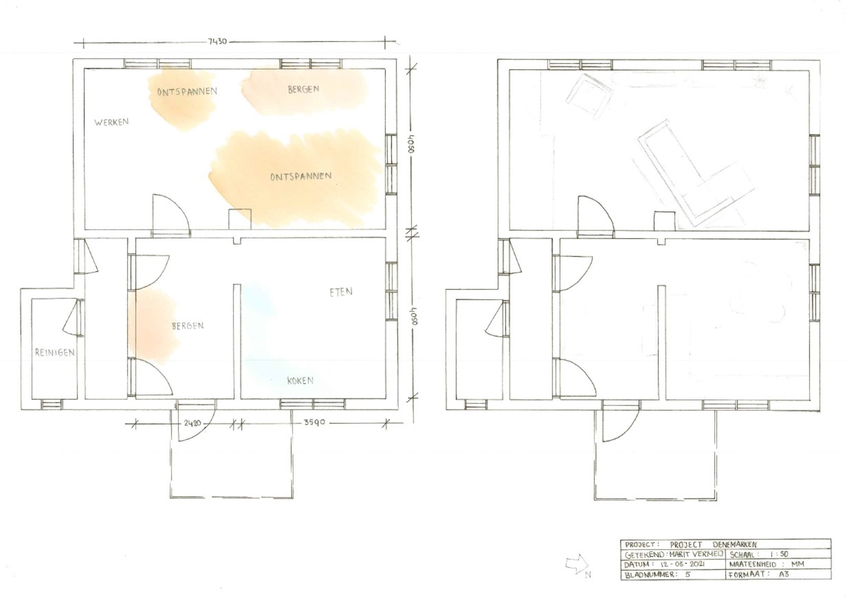
Voorlopig Ontwerp
Het voorlopig ontwerp is het uiteindelijk uitgekozen ontwerp uit de vlekkenplannen en indelingsschetsen. Dit ontwerp wordt uitgewerkt met kleine perspectieven. Dit ontwerp kan nog aangepast worden.
( bovenverdieping )

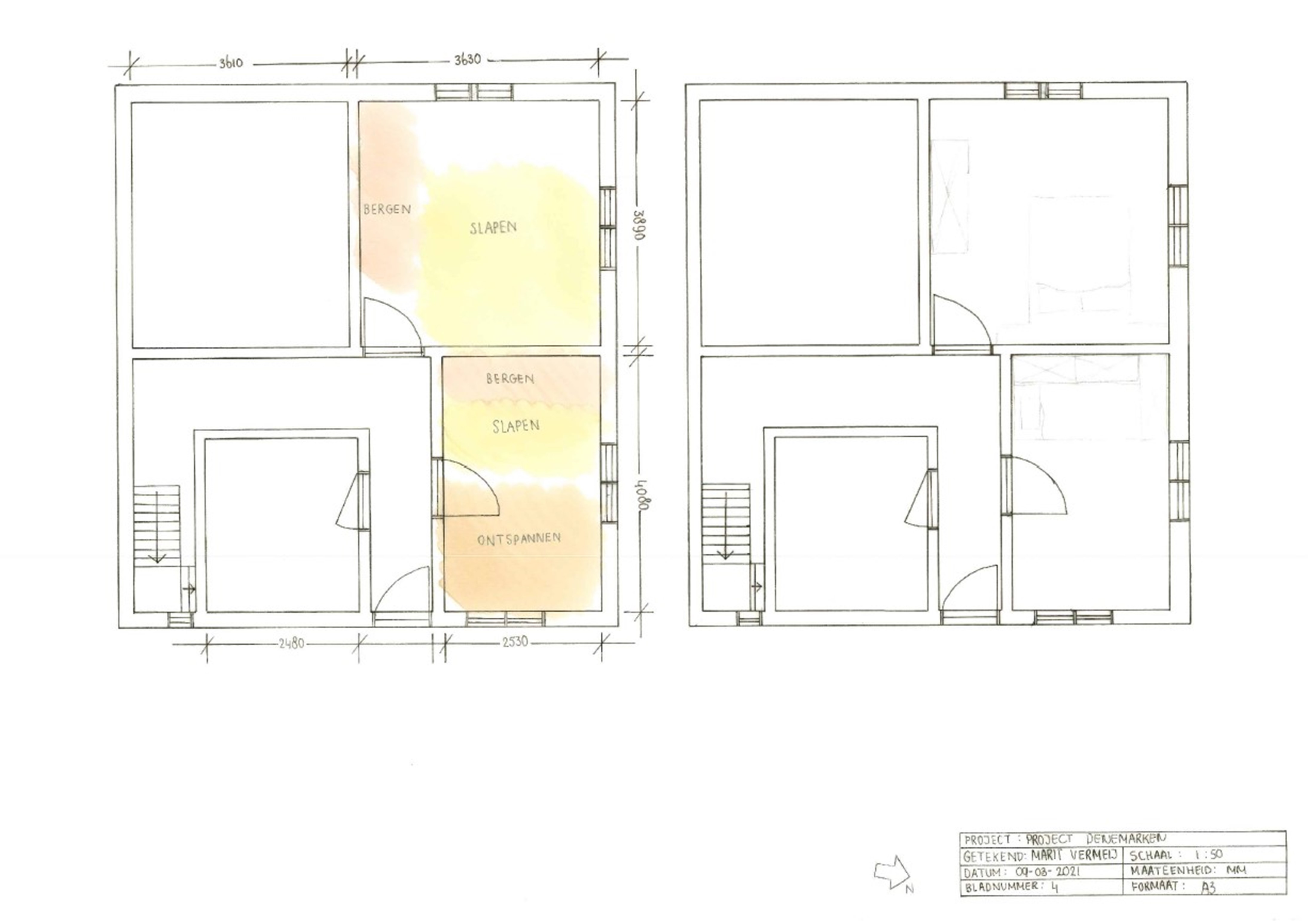
Voorlopig Ontwerp
Het voorlopig ontwerp is het uiteindelijk uitgekozen ontwerp uit de vlekkenplannen en indelingsschetsen. Dit ontwerp wordt uitgewerkt met kleine perspectieven. Dit ontwerp kan nog aangepast worden.
( benedenverdieping )

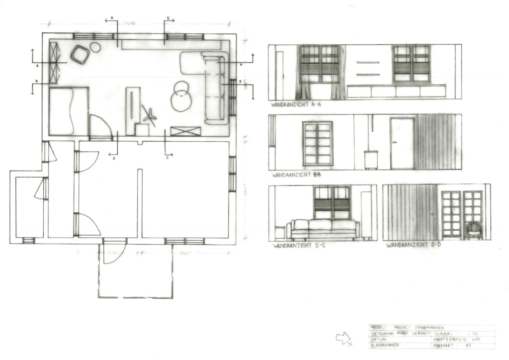
Definitief Ontwerp
Uiteindelijk met een paar kleine aanpassingen is er een definitief ontwerp gemaakt. Hierbij heb ik ook aanzichten gemaakt van de muren om een duidelijker beeld te geven wat er gebeurd met de ruimte.
( bovenverdieping )


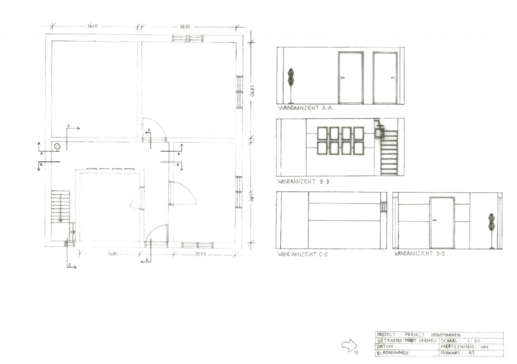
Definitief Ontwerp
Uiteindelijk met een paar kleine aanpassingen is er een definitief ontwerp gemaakt. Hierbij heb ik ook aanzichten gemaakt van de muren om een duidelijker beeld te geven wat er gebeurt met de ruimte.
( benedenverdieping )



