
Kinderopvang Amsterdam is een project vanuit school. De opdracht was om een ruimte te creëren waar kinderen van 4 tot 12 jaar zich fijn voelen. Hierbij was het dus belangrijk om te kijken naar kleurgebruik, maar ook naar de faciliteiten.
CONCEPT

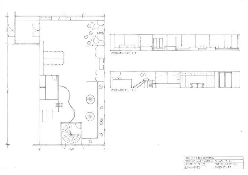
PLATTEGROND

GETEKEND PERSPECTIEF

MEUBELVOORSTELLEN



